rodinný dům v Krakovanech
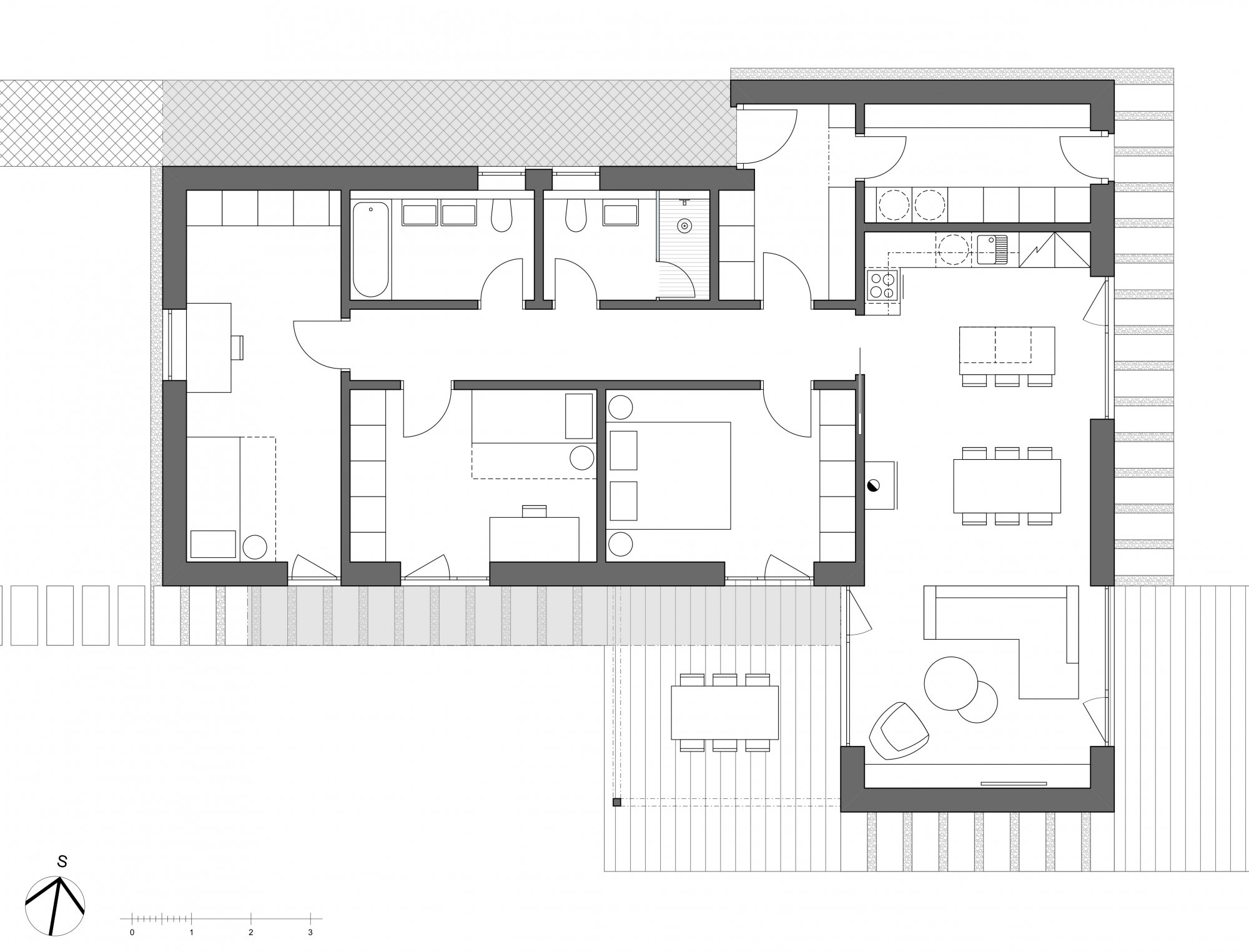
Rodinný dům v Krakovanech na Kolínsku stojí na pozemku na okraji obce s nádherným výhledem na okolní vlnící se louky a pole. Umístěním domu doprostřed podlouhlého pozemku vznikají dvě rozdílné části zahrady - slunná západní zahrada s výhledem do okolní přírody a soukromá východní část zahrady za domem, odcloněná od pohledů kolemjdoucích. Samotný dům je přízemní, archetypálního tvaru se sedlovou střechou a charakteristickým ustoupeným zápražím ze severní strany. V parteru je propojen s navazujícím přístřeškem pro parkování a nezbytným zahradním skladem. Dispozice 4+kk je klasicky rozdělena na část soukromou (se třemi ložnicemi a hygienickým zázemím) a část společenskou s hlavní obytnou místností, která je terasami propojena s východní i západní částí zahrady.







